Автомат предназначен для наполнения водой разных резервуаров. Я собрал его из подручных деталей, найденных у себя дома. Работает он по принципу "включил и забыл".

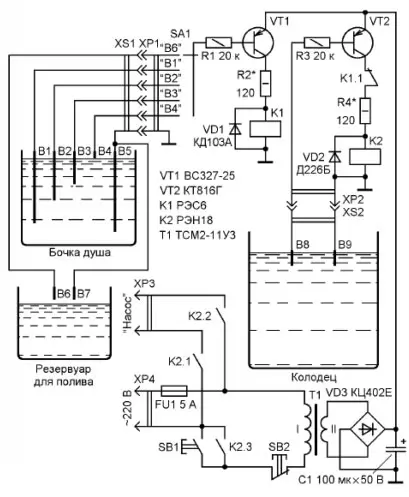
Рис. 1
Схема автомата показана на рис. 1. Он содержит два электронных реле (на транзисторах VT1, VT2 и электромагнитных реле K1, K2), девять датчиков уровня воды (два из них - B8 и B9 - находятся в колодце, а остальные - в подлежащих наполнению водой резервуарах) и сетевой источник питания (понижающий трансформатор T1, диодный мост VD3 и фильтрующий конденсатор C1). Выбор резервуара и уровня его наполнения осуществляется переключателем SA1.
В исходном состоянии автомат обесточен. При нажатии на кнопку SB1 первичная обмотка трансформатора T1 подключается к сети 220 В, и выпрямленное диодным мостом VD3 напряжение поступает на автомат. Если подключённые через разъём XP2-XS2 датчики В8 и В9 находятся в воде, через неё и балластный резистор R3 протекает ток, который открывает транзистор VT2. В результате срабатывает реле K2 и своими контактами K2.3 блокирует кнопку SB1, а контактами K2.1 и K2.2 подаёт напряжение сети на электронасос. В это время транзистор VT1 закрыт.
При достижении необходимого (выбранного переключателем SA1) уровня воды в бочке для душа или резервуара для полива открывается транзистор VT1 и срабатывает реле K1. Своими контактами K1.1 оно разрывает цепь питания обмотки реле K2, которое, отпуская, отключает насос и сам автомат от сети. Если же раньше, чем наполнится резервуар или бочка, окажутся вне воды датчики B8 и B9 в колодце, закроется транзистор VT2 и реле K2 точно так же выключит насос и автомат.
Управлять устройством можно и вручную. Это может понадобиться, например, для наполнения водой ведра или другой ёмкости, не оснащённой датчиками уровня воды. Включают автомат в этом случае, как и прежде, нажатием на кнопку SB1, а выключают кнопкой SB2, разрывающей цепь первичной обмотки трансформатора.
Понижающий трансформатор Т1 - любой с габаритной (типовой) мощностью примерно 7 В А и переменным напряжением на вторичной обмотке 24 В. Транзистор VT1 - любой низкочастотный структуры р-п-р с коллекторным током не менее рабочего тока реле К1, VT2 - КТ816 с любым буквенным индексом или аналогичный. Диоды VD1, VD2 - любые указанных на схеме серий или аналогичные кремниевые. Реле К1 - РЭС6 (исполнение РФО. 452.103; сопротивление обмотки - 495...605 Ом, ток срабатывания - 35 мА), К2 - РЭН18 (исполнение РХ4.564.509; сопротивление обмотки - 405...495 Ом, ток срабатывания - 35 мА). Разумеется, можно применить и другие реле с номинальным рабочим напряжением 24 В, при этом K2 должно иметь не менее трёх групп контактов, рассчитанных на коммутацию переменного напряжения 25о В при токе, потребляемом насосом.

Рис. 2
Датчики B1-B7 представляют собой отрезки прутка диаметром 4 мм из нержавеющей стали. Их концы длиной 60 мм согнуты под углом 90о (рис. 2,а), сплющены до толщины примерно 2,5 мм, после чего в них просверлены отверстия и нарезана резьба М2,5 под винты крепления соединительных проводов. Датчики B1-B5 установлены в ряд (рис. 2,б) на пластине из листового полистирола размерами 100x250 мм, закреплённой на пластмассовой крышке бочки для душа. На пластине датчики закреплены капроновой леской диаметром 0,3-0,4 мм, для чего по обе стороны от их изогнутых частей просверлены отверстия диаметром 2.3 мм. Длина датчиков L (без учёта толщины пластины tb крышки t2 и минимального расстояния A от нижней стороны последней до воды) указана в долях максимального уровня воды H. Для соединения с устройством использован пятижильный кабель.
Датчики B6, B7 закреплены таким же образом, что и B1-B5, на расстоянии 70 мм один от другого в середине пластмассовой пластины шириной100 мм и длиной, на 60 мм большей ширины прямоугольной ёмкости для полива. Длина выступающих за нижнюю плоскость пластины концов датчиков - 60 мм. Для предотвращения продольного смещения пластины к ней снизу приклеены две планки.

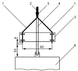
Рис. 3
Датчики B8, B9 представляют собой провода 1 (рис. 3) двужильного кабеля 2, зачищенные от изоляции на длине около 4 мм и разведённые примерно на 40 мм один от другого. Для фиксации их взаимного положения применена пластмассовая планка 5 соответствующего размера. Кабель прикреплён леской 3 к верёвке 4, на которой ниже подвешен насос 6.
Налаживание устройства сводится к подбору резисторов R2 и R4 так, чтобы ток через обмотку сработавшего реле превышал ток срабатывания примерно на 20 % (при использовании реле, применённых автором, - около 42 мА).
Автор: Ш. Галеев, г. Уфа, Башкортостан
