Для точной настройки радиоприёмника на частоту принимаемой радиостанции необходим верньер - механизм, преобразующий вращение ручки настройки в поворот органа настройки (например, ротора КПЕ) на относительно малый угол. Для успешного выполнения своих функций верньер должен обладать достаточным передаточным отношением и практически не иметь люфта. Предлагаемый фрикционный механизм имеет передаточное число около шести и предназначен для работы с самодельным КПЕ с воз-
душным диэлектриком, описанным автором в "Радио", 2016, № 12, с. 28, 29 (надо только между корпусом КПЕ и шасси приёмника поместить прокладку толщиной 6 мм). Из материалов для его изготовления понадобятся листовой стеклотекстолит толщиной 1; 1,2; 1,5, 2 и 6 мм (вместо стеклотекстолита толщиной 6 мм можно использовать органическое стекло или полистирол такой же толщины), ДВП толщиной 6 мм, полоска прозрачного органического стекла толщиной 1,5...3 мм, отрезок тонкостенной латунной трубки внеш-
ним диаметром 7 мм (автор использовал колено телескопической антенны), эпоксидный клей и стандартный крепёж (винты и гайки М3, несколько винтов-саморезов и шурупов), а из инструментов - ножовка по металлу, напильники, электродрель, набор свёрл и комплект метчиков для нарезания резьбы М3.
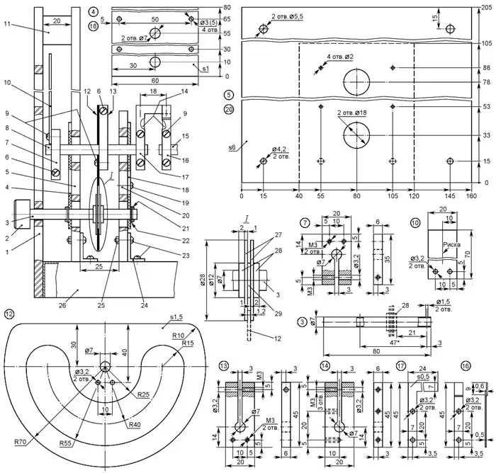
Устройство верньера показано на рис. 1. Ведущий диск, состоящий из склеенных между собой двух стеклотекстолитовых дисков 27, такого же числа шайб 28 и прокладки 29, приклеен к валику 3, на левом (по рисунку) конце которого закреплена ручка настройки 2. Валик вращается в подшипниках 4 и 18, привинченных к пластинам 5 и 20, которые, в свою очередь, закреплены на шасси приёмника 26. Перемещению валика в осевом направлении препятствуют надетые на него шайбы 22 и запрессованные при сборке штифты 21.
Рис. 1. Устройство фрикционного верньера: 1 - передняя стенка корпуса приёмника, ДВП, крепить к бруску 11 шурупами 3x20, а к шасси 26 - винтами 23 с гайками 25; 2 - ручка настройки; 3 - валик ведущего диска, трубка латунная (колено телескопической антенны); 4 - подшипник 1, стеклотекстолит толщиной 1,5 мм, крепить к дет. 5 винтами 19; 5 - пластина большая, ДВП, крепить к шасси 26 с помощью уголков 24 и винтов 23 с гайками 25, а к бруску 11 - шурупами 3x20; 6 - винт М3х15, 4 шт.; 7 - держатель стрелки 10, стеклотекстолит (органическое стекло, полистирол) толщиной 6 мм; 8 - валик ведомого диска, трубка латунная с наружным диаметром 7 мм (колено телескопической антенны); 9 - винт М3х6, 8 шт.; 10 - стрелка, стекло органическое толщиной 1,5...2 мм, крепить к дет. 7 винтами 9; 11 - брусок 20x20 мм, древесина; 12 - диск ведомый, стеклотекстолит толщиной 1...5 мм, крепить к держателю 13 винтами 9; 13 - держатель ведомого диска, стеклотекстолит (органическое стекло, полистирол) толщиной 6 мм; 14 - зажимы муфты передачи вращения от верньера к ротору КПЕ, стеклотекстолит (органическое стекло, полистирол) толщиной 6 мм; 15 - валик ротора КПЕ; 16, 17 - детали муфты, латунь, бронза толщиной 0,5 мм, крепить к деталям 14 винтами 9; 18 - подшипник 2 (отличается от подшипника 1 диаметром отверстий под крепёжные винты, указан на чертеже в скобках), стеклотекстолит толщиной 1...5 мм, крепить к дет. 20 винтами 19; 19 - винт самонарезающий М3х8, 8 шт.; 20 - пластина малая (её контур и отверстия под винты крепления к уголкам показаны на чертеже пластины 5 штриховыми линиями), ДВП, крепить к шасси 26 с помощью уголков 24 и винтов 23 с гайками 25; 21 - штифт стальной, 2 шт., запрессовать в дет. 3 при окончательной сборке верньера; 22 - шайба стальная с внутренним диаметром 7 мм, 2 шт., надеть на дет. 3 перед запрессовкой штифта 21; 23 - винт М3х12, 8 шт.; 24 - уголок мебельный, 4 шт., крепить к пластинам 5, 20 и шасси 26 винтами 23 с гайками 25; 25 - гайка М3, 10 шт.; 26 - шасси приёмника, крепить к стенке 1 винтами 23 с гайками 25; 27 - щека ведущего диска, стеклотекстолит толщиной 1,5 мм, 2 шт., клеить к дет. 3и 28 эпоксидным клеем; 28 - шайба, стеклотекстолит толщиной 2 мм, 2 шт., клеить к дет. 3 и 27 эпоксидным клеем; 29 - прокладка, стеклотекстолит толщиной 1,2 мм, клеить к дет. 3 и 27 эпоксидным клеем.
При вращении ручки настройки 2 крутящий момент за счёт трения передаётся от ведущего диска к ведомому 12, закреплённому с помощью держателя 13 и винтов 9 на валике 8. Диск 12 изготовлен из стеклотекстолита толщиной 1,5 мм. Большая площадь выреза под ведущий диск делает его гибким, что компенсирует возможную несоосность валиков 3 и 8 и неплоскостность дисков 27 и 12. На одном конце валика 8 с помощью держателя 7 и винтов 9 закреплена прозрачная стрелка шкалы 10 (её наблюдают через окно в передней стенке корпуса радиоприёмника 1), на другом - соединяющая его с валиком 15 ротора КПЕ муфта, состоящая из двух держателей 14 и закреплённых на них винтами 9 плоских пружин 16 и 17. Этот узел механизма предназначен для компенсации несоосности валика 8 и ротора КПЕ.
При изготовлении деталей верньера следует особое внимание уделить сверлению отверстий диаметром 7 мм в деталях 4, 7, 12-14 и 18. Во-первых, их рекомендуется вначале просверлить сверлом диаметром на 2...3 мм меньшим, чем требуется, и только затем рассверлить до нужного диаметра хорошо заточенным сверлом. А во-вторых, постараться обеспечить перпендикулярность осей этих отверстий плоскости названных деталей. Лучше всего использовать готовый или изготовить самому специальный держатель дрели, обеспечивающий перпендикулярность оси сверла к плоскости обрабатываемых деталей. Все отверстия в парных деталях (подшипники 4 и 18, пластины 5 и 20) рекомендуется сверлить совместно, соединив их при обработке в один общий пакет. Пропил шириной примерно 3 мм в деталях 7, 13 и 14 делают ножовкой по металлу.
Сборку механизма начинают с узла ведущего диска. Его детали 27-29 склеивают одну с другой и с валиком 3 эпоксидным клеем. Поскольку необходимое для работы верньера трение между дисками 12 и 27 возникает из-за деформации последних, толщину прокладочной шайбы 29 следует подобрать так, чтобы после склеивания зазор между дисками 27 был на 0,2...0,3 мм меньше фактической толщины диска 12.
Далее привинчивают к пластинам 5 и 20 подшипники 4, 18 и уголки 24, а к диску 12 - держатель 13 (для крепления первых используют винты-саморезы 19, вторых - винты 23 с гайками 25, третьего - винты 9). После этого продевают валик 3 с ведущим диском через полукруглый вырез в ведомом диске, затем через нижние (по рисунку) отверстия подшипников 4 и 18 и устанавливают узел ведущего диска на шасси 26 с таким расчётом, чтобы пластины 5 и 20 находились на расстоянии примерно 25 мм одна от другой. Немного отпустив винты крепления подшипника 18 и изменяя в небольших пределах его положение относительно пластины 20 (диаметр отверстий под винты 19 вполне позволяют это сделать), добиваются лёгкого с минимальным трением вращения валика 3, после чего на его выступающие за пределы подшипников концы надевают металлические шайбы 22 и фиксируют его положение в осевом направлении штифтами 21. Осевой люфт при необходимости выбирают подбором толщины шайб.
Далее в зазор между дисками 27 снизу вставляют кромку выреза диска 12 и через свободные (верхние по рисунку) отверстия подшипников и отверстие держателя 13 продевают валик 8. Зажав его в держателе 13 винтом 6, закрепляют на конце валика 3 ручку 2 и проверяют механизм в работе - при его нормальной работе удержать валик 8 пальцами руки при вращении ручки 2 практически невозможно.
Завершают сборку установкой на валике 8 держателя 7 с предварительно закреплённой на нём винтами 9 стрелкой 10 и держателя 14 с пружиной 17. Вторую часть муфты - держатель 14 с пружиной 16 - устанавливают на валике 15 ротора КПЕ, после чего проверяют работу верньера в целом.
Переднюю стенку 1 крепят к стенке шасси 26 винтами с гайками, а к пластине 5 - шурупами, ввинченными в брусок 11.

Рис. 2. Вид на узел стыковки одного из вариантов практической конструкции верньера с КПЕ
Материалы деталей и некоторые технологические указания по сборке верньера содержатся в подписи под рис. 1. Вид на узел стыковки одного из вариантов практической конструкции верньера с КПЕ показан на рис. 2.
Автор: С. Долганов, г. Барабинск Новосибирской обл.

